产品概述
NBKVQ644/45F气动三通球阀结构紧凑、外型美观、密封性能好。也能实现管道中介质流向的切换。也能使相互垂直的两个通道连通或关闭。
法兰三通球阀用于分流或汇合流通,是具有二面或四面阀座的多通口球阀,任一通口可用作入口而无泄漏。
三通即可制成L型通口也可制成T型通口。
L型三通球阀(44)适用于介质流向的切换,能使相互垂直的两个通道连通;
T型三通球阀(45)适用于介质的分流、合流或流向切换,T型孔道可以使三个通道互相连通或使其中两个通道连通,三通球阀一般采用两个阀座结构,亦可根据用户要求采用四阀座结构。
结构特点及用途
1、结构紧凑、启闭迅速、流道畅通、流体阻力小。
2、密封性能好:利用四面阀座材料聚四氟乙烯弹性变形实现无泄漏密封。
3、一阀多用:任一通口可用作入口而无泄漏,三通既可制成L型通口,也可制成T型通口。
4,维修方便:在系统卸压后,无需拆下整个阀体就可进行检查和维修。
5、泛适用于供水、石化、冶金、矿山、轻纺、能源、造纸、食品、钢铁等管路系统中对介质流向进行切换以及对介质的分流或混合流体。
技术参数
主要技术参数
| 公称通径 DN(mm) | 15 | 20 | 25 | 32 | 40 | 50 | 65 | 80 | 100 | 125 | 150 | 200 | 250 | 300 |
| 允许压差 (MPa) | ≤ 公称压力 |
| 动作范围 | 0~90° |
| 泄露量Q | 软密封为零泄露;金属密封符合ANSI B16.104 IV级标准 |
| 基本误差 | 带定位器:小于全行程的±2% |
| 回差 | 带定位器:小于全行程的2% |
阀体
| 阀体形式 | 三通铸造球型阀 |
| 公称通径 | DN15~200mm |
| 公称压力 | 国标PN1.6、2.5、4.0、6.4 MPa; 美标ANSI 150、300LB ;日标JIS 10、20、30K |
| 法兰标准 | JIS、ANSI、GB、JB、HG等 |
| 连接形式 | 法兰式、螺纹式(适用于1/2"~2") |
| 阀盖形式 | 整体式 |
| 压盖型式 | 压板压紧式 |
| 密封填料 | V型聚四氟乙烯填料、含浸聚四氟乙烯填料、石棉编织填料、柔性石墨 |
阀内件
执行机构
| 执行器型号 | GT、AT、AW系列单双作用气动执行器 |
| 供气压力 | 0.4~0.7MPa |
| 气源接口 | G1/4"、G1/8"、G3/8"、G1/2" |
| 环境温度 | -20~+90℃ |
| 作用形式 | 单作用执行机构:气关式(B)--失气时阀位开(FO);气开式(K)--失气时阀位关(FC) 双作用执行机构:气关式(B)--失气时阀位保持(FL);气开式(K)-- 失气时阀位保持(FL) |
| 可配附件 | 定位器、电磁阀、空气过滤减压器、保位阀、行程开关、阀位传送器、手轮机构等 |
阀门控制方式
气动三通球阀分L型和T型,介质流通方向见下图。L型气动三通球阀适用于介质流向的切换,能使相互垂直的两个通道连通:T型气动三通球阀适用于介质的分流、合流或流向 切换,T型孔道可以使三个通道互相连通或使其中两个通道连通,气动三通球阀一般采用两个阀座结构,亦可根据用户要求采用四阀座结构。
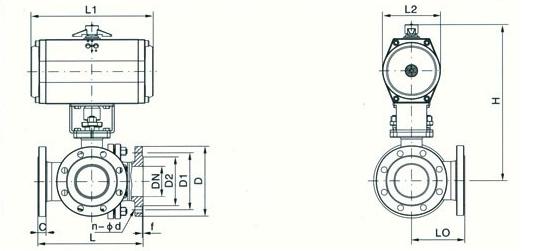
外形尺寸


主要外形及连接法兰尺寸 Q64(4、5)(F、N、P)-16
| 通径 | 外形尺寸 | 连接法兰尺寸 | 执行器型号 |
| mm | in | L | L0 | L1 | L2 | H | D | D1 | D2 | C | f | n-φd |
| 15 | 1/2 | 150 | 75 | 140/178 | 62/75 | 185/191 | 95 | 65 | 46 | 14 | 2 | 4-φ14 | GTD52/GTE65 |
| 20 | 3/4 | 150 | 75 | 164/214 | 75/91 | 197/225 | 105 | 75 | 56 | 16 | 2 | 4-φ14 | GTD65/GTE80 |
| 25 | 1 | 180 | 90 | 164/214 | 75/91 | 199/227 | 115 | 85 | 65 | 16 | 2 | 4-φ14 | GTD65/GTE80 |
| 32 | 11/4 | 200 | 100 | 190/295 | 91/112 | 240/266 | 140 | 100 | 76 | 18 | 3 | 4-φ18 | GTD80/GTE100 |
| 40 | 11/2 | 220 | 110 | 210/295 | 101/112 | 255/271 | 150 | 110 | 84 | 18 | 3 | 4-φ18 | GTD90/GTE100 |
| 50 | 2 | 240 | 120 | 247/340 | 112/127 | 286/307 | 165 | 125 | 99 | 20 | 3 | 4-φ18 | GTD100/GTE115 |
| 65 | 21/2 | 260 | 130 | 276/398 | 127/139 | 330/335 | 185 | 145 | 118 | 20 | 3 | 4-φ18 | GTD115/GTE125 |
| 80 | 3 | 280 | 140 | 308/438 | 139/159 | 349/383 | 200 | 160 | 132 | 20 | 3 | 8-φ18 | GTD125/GTE145 |
| 100 | 4 | 320 | 160 | 348/562 | 159/206 | 421/487 | 220 | 180 | 156 | 22 | 3 | 8-φ18 | GTD145/GTE190 |
| 125 | 5 | 380 | 190 | 432/724 | 176/228 | 485/557 | 250 | 210 | 184 | 22 | 3 | 8-φ18 | GTD160/GTE210 |
| 150 | 6 | 440 | 220 | 524/928 | 228/275 | 582/629 | 285 | 240 | 211 | 24 | 3 | 8-φ22 | GTD210/GTE255 |
| 200 | 8 | 550 | 275 | 648/1033 | 275/324 | 702/750 | 340 | 295 | 266 | 24 | 3 | 12-φ22 | GTD255/GTE300 |
主要外形及连接法兰尺寸 Q64(4、5)(F、N、P)-25
| 通径 | 外形尺寸 | 连接法兰尺寸 | 执行器型号 |
| mm | in | L | L0 | L1 | L2 | H | D | D1 | D2 | C | f | n-φd<, /, N, PA, S,> |
| 15 | 1/2 | 150 | 75 | 164/214 | 75/91 | 191/219 | 95 | 65 | 46 | 14 | 2 | 4-φ14 | GTD65/GTE80 |
| 20 | 3/4 | 150 | 75 | 164/214 | 75/91 | 197/225 | 105 | 75 | 56 | 16 | 2 | 4-φ14 | GTD65/GTE80 |
| 25 | 1 | 180 | 90 | 190/246 | 91/101 | 227/237 | 115 | 85 | 65 | 16 | 3 | 4-φ14 | GTD80/GTE90 |
| 32 | 11/4 | 200 | 100 | 210/295 | 101/112 | 256/266 | 140 | 100 | 76 | 18 | 3 | 4-φ18 | GTD90/GTE100 |
| 40 | 11/2 | 220 | 110 | 247/340 | 112/127 | 271/292 | 150 | 110 | 84 | 18 | 3 | 4-φ18 | GTD100/GTE115 |
| 50 | 2 | 240 | 120 | 276/398 | 127/139 | 307/312 | 165 | 125 | 99 | 20 | 3 | 4-φ18 | GTD115/GTE125 |
| 65 | 21/2 | 260 | 130 | 308/438 | 139/159 | 335/370 | 185 | 145 | 118 | 22 | 3 | 4-φ18 | GTD125/GTE145 |
| 80 | 3 | 280 | 140 | 348/478 | 159/176 | 383/400 | 200 | 160 | 132 | 24 | 3 | 8-φ18 | GTD145/GTE160 |
| 100 | 4 | 320 | 160 | 378/724 | 176/228 | 438/510 | 235 | 190 | 156 | 24 | 3 | 8-φ22 | GTD160/GTE210 |
| 125 | 5 | 380 | 190 | 524/928 | 228/275 | 557/604 | 270 | 220 | 184 | 26 | 3 | 8-φ26 | GTD210/GTE255 |
| 150 | 6 | 440 | 220 | 648/1033 | 275/324 | 629/677 | 300 | 250 | 211 | 28 | 3 | 8-φ26 | GTD255/GTE300 |
| 200 | 8 | 550 | 275 | 715/1129 | 324/380 | 750/808 | 360 | 310 | 274 | 30 | 3 | 12-φ26 | GTD300/GTE350 |
※注:系列球阀结构长度及连接法兰尺寸可根据用户要求设计制造。
※注:L1数据×××/× ××分别是气动执行器双作用式,单作用式(弹簧复位)。
※注:根据不同阀门扭矩、使用介质适配的执行器型号可能有所不同.相关尺寸随之变化。