
产品概述
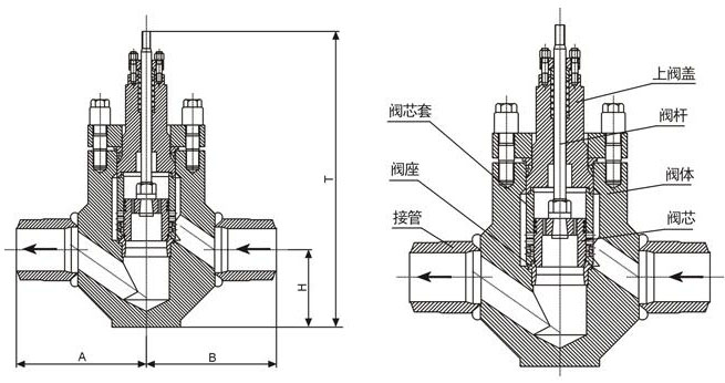
锅炉给水调节阀STB是一种压力平衡套筒结构高压差调节阀。阀内组件的套筒和阀芯是一种多孔和串级的混合结构,流体先经过套筒窗口进行第一级节流,再经过三级连续串级节流,允许压差大,密封性好,流体通道呈S流线型,流量大,调节阀动态稳定性好。
该阀是火力发电厂锅炉给水系统的调节阀之一,也可适用于石油化工等其他工业的自动控制系统控制高压差流体,可配电动执行机构和气动执行机构。
该阀具有以下优点:
阀内组件采用套筒节流,有效控制流速在30m/s左右。
节流面与阀座密封面分开,有效保护密封面,密封性能优良,使用寿命长。
阀内组件采用高强度不锈钢制造,零件表面经过硬化处理,硬度可达到HRC70左右,抗冲刷能力强。
阀芯采用压力平衡式结构,减少流体作用在阀芯上的不平衡力。
KV值和行程
| 公称通径 | 50 | 80 | 100 | 150 | 200 | 250 | 300 |
| KV值 | 27 | | 78 | 135 | 198 | | |
| 行程mm | 25 | 38 | 38 | 50 | 75 | 100 | 100 |
外形尺寸
| 公称通径DN | B | T | H | 管道规格 |
50 | 385 | 258 | | 76*10 |
80 | | | | |
100 | 310 | 750 | 190 | 133*16 |
125 | 390 | 895 | 225 | 168*22 |
150 | 727 | 985 | | 194*25 |
200 | 390 | | | 273*36 |
技术参数和性能
阀 体
形 式 锻造直通式
公称通径 DN50,80,100,150,200,250,300
公称压力 PN25,32Mpa
连接形式 BW焊接形式
材 料 20#锻钢
工作温度 小于420度
压盖形式 螺栓压紧式
填 料 高温石墨编织填料
阀内组件
阀芯形式 压力平衡串级式
流量特性 等百分比特性
套筒形式 分离式
材 料 特种不锈钢表面硬化处理
执行机构
形 式 气动活塞执行机构或电动执行机构
环境温度 -30-70度
作用形式 气-关式 或电—关式
附 件 定位器,手轮机构,行程开关,电磁阀,阀位传送器等
性能
泄流量 小于额定KV值的0.01%,符合ANSI B16.104—1976 IV级
回 差 小于全行程的1(带定位器)
线 性 小于全行程的+-1(带定位器)