产品概述
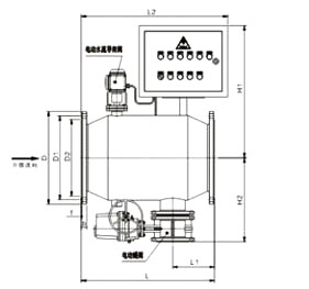
DZPG-1型电动直通式自动反冲排污过滤器由壳体、不锈钢过滤网筒、杂质收集段,电动蝶阀(杂质排污口)、电动水流导向阀、电动执行机构和电控箱组成。此系列过滤器具有定时设置功能,可根据介质的质量和管网系统的需要设置反冲洗过滤时间,依靠电动执行机构,从而实现定时全自动反冲洗过滤、排污、清洗。且其清污、排污是在线过滤过程中同时完成的,不必停止水流运行。实现了全自动化,自动过滤、排污和自动反冲洗。此系列过滤器适用于各种热水采暖系统、冷水空调系统、冷却塔系统供水系统、工艺水系统及工业冷却水系统,特别是24小时连续运行的不停机系统,可以滤去水中的各种机械杂质,确保系统设备的安全可靠运行。性能特点DZPG-1型电动直通式自动反冲排污过滤器除具有ZPG-1型过滤器的全部性能外,还独具以下特点:
1、DZPG-1型过滤器能实现阀门就地与中央远程两种控制方式,运行管理方便、过滤速度高、冲洗简单可靠、反冲洗能力强。
2、通过对DZPG-1型过滤器定时控制设置时间,在系统连续运行的情况下可全自动进行定期过滤、排污、反冲洗、清洗,一步到位,并保证过滤器的高效使用。
3、DZPG-1型过滤器除有全自动控制外,还可以手动控制,进行过滤、排污、清洗。
4、控制箱设有过滤器工作状态、清洗状态、及故障状态指示,及相应信号的输出,操作简便。
5、电控箱内的强电动力回路、强电控制回路和弱电控制回路等各种回路关联的控制器件、端子排和连接导线进行了分隔布置,采取防止强电回路干扰弱电回路的措施,利于运行、检修安全。
6、电控箱内配置了故障报警器及输入端子,电气控制系统有故障时它会发出报警信号。
7、排污、反冲洗排污、清污时间可调整。排污量小于正常工作流量的10%。
8、节约投资费用,在安装过程中不需要多设旁通管路,降低了劳动强度,无需拆卸和更换滤网,使用寿命长达20年。操作简便效率高,过滤反冲效果好,避免了在调试和维修过程中的拆卸排污。

主要连接尺寸