自力式压力调节阀是不需要外加能源,利用被调介质自身能量而实现自动调节的执行器产品。
该产品的特点,能在无电、无气的场所工作,同时又节约了能源,压力设定值在运行中可随意调整。采用快开流量特征,动作灵敏、密封性能好,因而它广泛应用于石油、化工、电力、冶金、食品、轻纺、机械制造与居民建筑楼群等各种工业设备中用气体、液体及蒸汽介质减压、稳压(用于阀后调节),或泄压、稳压(用于阀前调节)的自动控制。

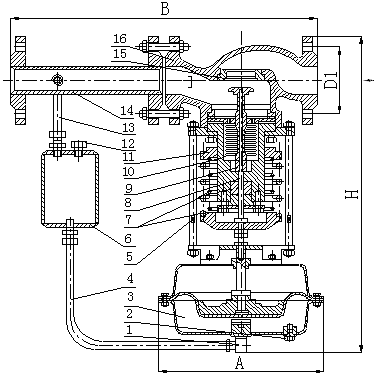
三、结构与作用原理1、 进液接头
2、 排气塞
3、 检测执行机构
4、 进液管
5、 压盖螺钉
6、 冷凝器
7、 弹簧
8、 阀杆
9、 阀芯
10、 波纹管
11、 压力调节盘
12、 注液口螺钉
13、 取压管
14、 阀后接管
15、 阀座
16、 阀体
图一a、自力式压力调节阀
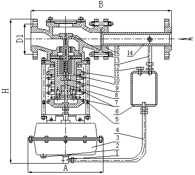
调压阀主要有检测执行机构、调压阀、冷凝器与阀后接管等腰三角形四部分组成,其结构(见图一)。
图一a、用于控制阀后压力的调压阀,阀的作用方式为压闭型。其原理如下:介质由箭头方向流入阀体、经阀芯、阀座节流后输出。另一路经冷凝器(介质为蒸汽时使用)冷却后,被引入执行机构作用于膜片上,使阀芯随之发生相应的位移,达到减压、稳压之目的。如阀后压力增加,作用于膜片上的力增加,压缩弹簧,带动阀芯,使阀门开启度减小,直至阀后压力下降到设定值为止。同理,如阀后压力降低,作用在膜片上的力减小,由于弹簧的反作用力,带动阀芯,使阀门开启度增大,直到阀后压力上升到设定值为止。
图一b:用于控制阀前压力的调压阀,阀的作用方式为压开型。其原理如下:介质由箭头方向流入阀体,另一路经冷凝器(介质为蒸汽时使用)冷却后,被引入执行机构作用于膜片上,使阀芯随之发生相应的位移,达到泄压、稳压之目的。如阀前压力增加,作用于膜片上的力增加,压缩弹簧,带动调芯,使阀门开启度增大,直到阀前压力下降到设定值为止。同理,如阀门开启度减小,直到阀前压力上升到设定值为止。

1、进液接头
2、排气管
3、检测行机构
4、进液管
5、压盖螺杆
6、冷凝器
7、弹簧
8、阀杆
9、阀芯
10、波纹管
11、压力调节盘
12、注液口螺钉
13、取压管
14、阀前接管
15、阀座
16、阀体
图一b、自力式压力调节阀
四、主要技术参数和性能指标、材料
1、主要技术参数和性能指标
公称通径DN(mm) | 20 | 25 | 32 | 40 | 50 | 65 | 80 | 100 | 125 | 150 | 200 | 250 | 300 |
额定流量系数(KV) | 7 | 11 | 20 | 30 | 48 | 75 | 120 | 190 | 300 | 480 | 760 | 1100 | 1750 |
额定行程(mm) | 8 | 10 | 14 | 20 | 25 | 40 | 50 | 60 | 70 |
公称压力PN(Mpa) | 1.6、4.0、6.4 |
压力调节范围(Kpa) | 15~50、 40~80、 60~100、 80~140、 120~180、 160~220、200~260、 240~300、 280~350、 330~400、 380~450、 430~500、480~560、 540~620、 600~700、 680~800、 780~900、 880~1000、600~1500、 1000~2500 |
流量特性 | 快开 |
调节精度(%) | ±5 |
使用温度(℃) | ≤350 |
允许 泄漏量 | 硬密封(l/h) | 单座:≤10-4 阀额定容量(Ⅳ 级);双座、套筒≤5×10-3 阀额定容量(Ⅱ级) |
软密封(ml/h) | 0.15 | 0.30 | 0.45 | 0.60 | 0.90 | 1.7 | 4.0 | 6.75 | 11.10 | 11.60 |
减压比 | 最大 | 10 |
最小 | 1.25 |
2、压力调节范围确定
压力调节范围分段,见主要参数及性能指标表,控制压力应尽量选取在调节范围的中间值附近(见表一)。
压力调节范围(以薄膜式执行机构为例,1000~2500KPa视具体工况要求决定)
压力调节范围(Kpa) | 压力分段范围(Kpa) | 膜室有效面积(cm2) | 使用阀门口径(mm) |
15~140 | 40~80 | 280 | 20~25 |
60~140 |
15~50 | 400 | 32~300 |
40~80 |
60~140 |
120~300 | 120~300 | 70 | 20~50 |
100 | 65~100 |
280 | 125~300 |
280~500 | 280~500 | 200 | 20~300 |
480~1000 | 480~1000 | 70 | 20~50 |
100 | 65~100 |
280 | 125~300 |
3、阀后压力调节阀,其阀前压力与阀后压力的关系
自力式调节阀本身是一个调节系统,阀本身又有一定的压降要求,对阀后压力调节阀(B型),为保证阀后压力在一定范围内,其阀前压力必须达到一定值,其要求可参见下表:
阀前压力 | 阀后压力 | 阀前压力 | 阀后压力 | 阀前压力 | 阀后压力 | 阀前压力 | 阀后压力 |
30 | 15~24 | 350 | 35~280 | 700 | 70~560 | 1250 | 125~1000 |
50 | 15~40 | 400 | 40~320 | 750 | 75~600 | 1500 | 150~1200 |
100 | 15~80 | 450 | 45~360 | 800 | 80~640 | 2000 | 200~1600 |
150 | 15~120 | 500 | 50~400 | 850 | 85~680 | 2500 | 250~2000 |
200 | 20~160 | 550 | 55~440 | 900 | 90~720 | 3000 | 300~2400 |
250 | 25~200 | 600 | 60~480 | 950 | 95~760 | | |
300 | 30~240 | 650 | 65~520 | 1000 | 100~800 | | |

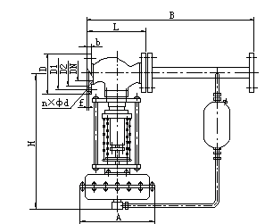
外形尺寸图
4、外形尺寸与重量 单位:mm
公称通径DN | 20 | 25 | 32 | 40 | 50 | 65 | 80 | 100 | 125 | 150 | 200 | 250 | 300 |
法兰接管尺寸B | 383 | 512 | 603 | 862 | 1023 | 1380 | 1800 | 2000 | 2200 |
法兰端面距L | 150 | 160 | 180 | 200 | 230 | 290 | 310 | 350 | 400 | 480 | 600 | 730 | 850 |
压力调节范围Kpa | 15-140 | H | 475 | 520 | 540 | 710 | 780 | 840 | 880 | 915 | 940 | 1000 |
A | 280 | 308 |
130-300 | H | 455 | 500 | 520 | 690 | 760 | 800 | 870 | 880 | 900 | 950 |
A | 230 |
280-500 | H | 450 | 490 | 510 | 680 | 750 | 790 | 860 | 870 | 890 | 940 |
A | 176 | 194 | 280 |
480-1000 | H | 445 | 480 | 670 | 740 | 780 | 850 | 860 | 880 | 930 |
A | 176 | 194 | 280 |
600-1500 | H | 445 | 570 | 600 | 820 | 890 | 950 | 1000 | 1100 | 1200 |
A | 85 | 96 |
1000-2500 | H | 445 | 570 | 600 | 820 | 890 | 950 | 1000 | 1100 | 1200 |
A | 85 | 96 |
重量Kg | 26 | 37 | 42 | 72 | 90 | 114 | 130 | 144 | 180 | 200 | 250 |
导压管接头螺纹 | M16×1.5 |
5、主要零件材料
零件名称 | 材料 |
阀 体 | ZG230-450、ZG1Cr18Ni9Ti、ZGCr18Ni12Mo2Ti |
阀 芯 | 1Cr18Ni9Ti、Cr18Ni12Mo2Ti |
阀 座 | 1Cr18Ni9Ti、Cr18Ni12Mo2Ti |
阀 杆 | 1Cr18Ni9Ti、Cr18Ni12Mo2Ti |
橡胶膜片 | 丁晴、乙炳、氟、耐油橡胶 |
膜 盖 | A3、A4钢涂四氟乙烯 |
填 料 | 聚四氟乙烯、柔性石墨 |
阀结构形式:波纹管平衡型
双阀芯平衡型

执行机构:
阀体工作温度与允许压力:


五、安装、使用与维护
自力式压力调节阀安装方法

1、过滤器 2、自力式调节阀 3、导压管Φ12×2 4、冷凝器
安装方式说明
P1:调节气体,阀前压力调节(K型),过滤器(1)可以不安装
P2:调节气体,阀后压力调节(B型),过滤器(1)可以不安装
P3:调节液体,阀前压力调节(K型),对于非清洁流体,应装过滤器(1)
P4:调节液体,阀后压力调节(B型),对于非清洁流体,应装过滤器(1)
P5:调节蒸气,阀前压力调节(K型),应装冷凝器(4),建议装过滤器(1)
P6:调节蒸气,阀后压力调节(B型),应装冷凝器(4),建议装过滤器(1)
注意:安装时取压点离开调压阀适当的距离,控制阀前压力应大于2倍管道直径,控制阀后压力应大于6倍管道直径。安装冷凝器时应注意冷凝器的位置,使其高于膜头而低于工艺管道,以保证冷凝器内充满冷凝液。
六、安装时,注意以下几点:
1、安装
(1) 冷凝器必须高于调压阀的执行机构而低于阀后(阀后调压阀)或阀前(阀前调压阀)接管,以保证冷凝器内充满冷凝液。
(2) 取压点应取在离调压阀适当的位置,阀前调压阀应大于2倍管道直径,阀后调压阀应大于6倍管道直径。
(3) 为便于现场维修及操作,调压阀四周应留有适当空间,阀前后应设置截止阀与旁路手动阀,如图五所示。

图五 调压阀阀组安装方案
注:图中虚线表示管道出入口的另一种允许方向
(4) 调压阀口径过大(DN≥100时),应有固定支架。
(5) 介质流动方向与阀体上箭头指向一致,前后管道中心应对准调压阀两法兰中心,避免阀体受过大的应力。
(6) 阀前应设置过滤器以防止介质中杂质堵塞。
(7) 调节阀应安装在环境温度不超过-25℃~55℃的场合。
2、使用
在常温下使用气体或低粘度液体场合时的操作程序:(参见图三)
(1) 缓慢开启阀前后截止阀。
(2) 拧松排气塞,直至气体或液体从执行机构溢出为止。
(3) 然后重新拧紧排气塞,调压阀即可工作。所需压力值的大小可通过压力调节盘的调整而得到,调整时,注意观察压力表示值,动作应缓慢,不得使阀杆跟着转
动。使用蒸汽场合时的操作程序:(参见图四)
(1) 从冷凝器上拧下注液口螺钉。
(2) 拧桦执行机构排气塞。
(3) 使用漏头通过注液口加水直至排汽孔流出为止。
(4) 拧紧排气塞,继续注水直至溢出注液口。
(5) 拧紧注液口螺钉。
(6) 缓慢开启调压阀前后截止阀。
(7) 调整压力调节盘,并观察压力表示值达到要求为止。
3、维修
调节阀投入运行后,一般维护工作量很小,平时只要观察阀前、阀后压力示值是否符合工艺所需值要求即可。另外,观察填料函与执行机构是否渗漏,若渗漏应拧紧或更换填料及膜片。调压阀常见故障排除方法(见表五)
表五
故障现象 | 产生原因 | 排除方法 |
阀后压力不稳定随着 阀前压力变动而变动 | 1、阀芯被异物卡住 2、阀杆、推杆卡住 3、进液管道堵塞 | 1、重新拆装排除异物 2、重新调整 3、疏通 |
阀后压力降不下来,始 终在需求值上方变动 | 1、设定弹簧刚度太大 2、阀口径过大 3、阀前压力过高、减压比过大 | 1、更换弹簧 2、更换较小口径 3、阀前压:阀后压超过10:1应2级降压 |
阀后压力升不上去,始 终在需求值下方变动 | 1、设定弹簧刚度太小 2、阀口径过小 3、减压比过小 | 1、更换弹簧 2、更换圈套口径 3、阀前压:阀后压低于1.25应提高阀前压 |
阀前压力升不上去,始 终在需求值下方动作 | 1、设定弹簧钢度太小 2、阀芯被异物卡住 3、阀杆、推杆卡住 4、阀芯、阀座损坏、泄漏量过大 5、阀口径太大 | 1、更换弹簧 2、重新拆装 3、重新调整 4、重新研磨或更换 5、更换较小口径 |
阀前压力降不下去,始 终在需求值上方动作 | 1、设定弹簧刚度太大 2、口径太小 3、阀芯、阀杆、推杆等卡死 | 1、更换弹簧 2、更换较大口径 3、排除卡死原因,重新调整 |
阀后压或阀前压 波动过于频繁 | 1、阀口径过大 2、执行机构膜室容量太小 | 1、选择恰当的阀口径 2、在进液管道内增设阻尼器 |
七、订货须知
订货时请用户提供以下资料:
型号 | 名称 |
公称通径 | 公称压力 |
信号范围 | 作用方式 |
介质参数 | 介质工作温度 |
额定流量系数 | 固有流量特性 |
阀前最大压力、阀前最小压力、阀前正常压力 | 阀后最大压力、阀后最小压力、阀后正常压力 |
最大流量、最小流量、正常流量 | 液体粘度、液体重度、气体重度 |
材质:阀芯、阀体、内阀件、填料 | 附件 |
工艺管道尺寸 | 耐蚀等特殊要求 |
自力式调压范围、调温范围、压差调节范围、微压调节范围 | |