一、用途与特点
指挥器操作型自力式压力调节阀(供氮阀),是一种无须外来能源,利用被调介质自身的压力变化达到自动调节和稳定阀后压力为设定值的节能型压力调节阀。
该阀压力设定在指挥器上实现,方便、快捷,压力设定值在运行中也可随意调整;控制精度高,可比一般ZZY型直接操作自力式压力调节阀高一倍,适合于控制精度要求高的场合。它广泛应用于化工、石油、冶金、电力、轻纺等工业部门中用作生产过程的自动调节。
二、结构与原理
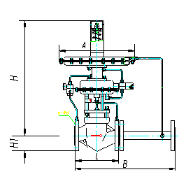
指挥器操作自力式压力调节阀是由指挥器、调节阀、执行机构和阀后接管四部分组成。(见图一)
工作原理:介质以所示箭头方向进入阀体,一路经过滤减压器减压后的压力被引入指挥器;另一路通过阀芯、阀座,节流后的压力流向阀后,并通过导压管引入指挥器执行机构。当阀后压力高于设定压力时,其压力作用在指挥器薄膜有效面上产生一个推力带动指挥器阀芯关闭,切断引入主阀执行机构膜室中的压力,使主阀阀芯关闭,阀后压力随之降低。当阀后压力低于设定值时,由于指挥器主弹簧的反作用力打开指挥器阀芯,阀前压力又被引入主阀执行机构膜室产生推力,使主阀阀芯打开,阀后压力随之升高。如此往复,保持阀后压力为设定值。
?
图一?指挥器操作型自力式微压调节阀
?
三、主要参数、性能指标与材料
1、主要参数及主要性能指标见表一
表一
| 公称通径DN(mm) |
20 |
25 |
40 |
50 |
80 |
100 |
150 |
| 阀座直径(mm) ? |
? ? 6 |
? ?15 |
20 |
25 |
32 |
40 |
50 |
65 |
80 |
100 |
125 |
150 |
| 额定流量系数Kv |
0.32 |
5 |
8 |
11 |
20 |
30 |
48 |
75 |
120 |
190 |
300 |
480 |
| 压力调节范围Kpa |
0.1~0.5、0.4~5.0、4.0~12.0、 |
| 公称压力PN(Mpa) |
1.6 |
| 被调介质温度(℃) |
-5~+100 |
| 流量特性 |
快开 |
| 调节精度(%) |
≤±5 |
| 执行机构有效面积(cm2) |
100 |
200 |
280 |
400 |
| 信号接口 |
内螺纹M10×1 |
M16X1 |
?
2、压力调节范围见表二
表二
| 压力调节范围(Kpa) |
指挥器膜室
有效面积(cm2) |
执行机构膜室
有效面积(cm2) |
使用阀门口径(mm) |
| 0.1~0.5 |
1200 |
100 |
20~32 |
| 0.4~5.0 |
600 |
| 4.0~12.0 |
400 |
| 0.1~0.5 |
1200 |
200 |
40~50 |
| 0.4~5.0 |
600 |
| 4.0~12.0 |
400 |
| 0.1~0.5 |
1200 |
400 |
65~100 |
| 0.4~5.0 |
600 |
| 4.0~12.0 |
400 |
| 0.1~0.5 |
1200 |
600 |
125~150 |
| 0.4~5.0 |
600 |
| 4.0~12.0 |
400 |
?
3、主要零件材料见表三
表三
| 零 件 名 称 |
材 ??料 |
| 气动活塞式执行机构,指挥器 |
组合件 |
| 阀体,阀盖 |
ZG230-450,ZG0Cr18Ni9Ti,ZG0Cr18Ni12Mo2Ti |
| 推杆,阀杆 |
2Cr13,1Cr18Ni9 |
| 阀座 |
1Cr18Ni9Ti |
| 阀芯(软密封)/填料 |
聚四氟乙烯 |
| 波纹膜片 |
丁腈橡胶夹增强涤纶织物 |
| 弹簧 |
1Cr18Ni9Ti、60Si2Mn |
4、外形尺寸见表四、图二 ??
| 公称
通径 |
L |
B |
H1 |
H |
| A=1200 cm2 |
A=600 cm2 |
A=400 cm2 |
| 压力调节范围(Kpa) |
| 0.1~0.5 |
0.4~5.0 |
0.5~7 |
| 20 |
150 |
383 |
53 |
605 |
554 |
554 |
| 25 |
160 |
58 |
605 |
554 |
554 |
| 32 |
180 |
512 |
70 |
615 |
564 |
564 |
| 40 |
200 |
75 |
640 |
589 |
589 |
| 50 |
230 |
603 |
83 |
655 |
604 |
604 |
| 65 |
290 |
862 |
93 |
722 |
671 |
671 |
| 80 |
310 |
100 |
738 |
687 |
687 |
| 100 |
350 |
1023 |
110 |
755 |
704 |
704 |
| 125 |
400 |
1380 |
125 |
918 |
867 |
867 |
| 150 |
480 |
143 |
1.25 |
974 |
974 |
注:1)标准法兰连接形式PN16为凸面,连接尺寸铸铁法兰按GB4216.5-84,铸钢法兰按GB9113-2000、JB/T-94,阀体法兰及法兰端面距也可按用户指定标准制造,如:ANSI,JIS,DIN等标准。
2)接管根据用户需要配置
?
5、产品重量见表五
?表五 单位:Kg
| 公 称 通 径(mm) |
20 |
25 |
32 |
40 |
50 |
65 |
80 |
100 |
125 |
150 |
| A=400cm2 |
18 |
18 |
25 |
27 |
40 |
55 |
80 |
108 |
130 |
150 |
| A=600 cm2 |
20 |
20 |
27 |
30 |
45 |
60 |
86 |
115 |
140 |
160 |
| A=1200 cm2 |
22 |
22 |
30 |
34 |
50 |
66 |
92 |
120 |
150 |
170 |
四、安装、维护与调试
1、安装(见图三)
(1)?检查整机零件是否缺损与松动,对使用有害人体健康的介质,必须进行强度、密封、泄漏与精度测试。
(2)?在安装前,对管道进行清洗(否则由于焊渣等管道垃圾,损坏阀芯密封面,导致阀门不能正常工作),阀门入口处要有足够的直管段,并配有过滤器。阀体与管道的法兰连接,要注意同轴度。
(3)?安装场地应考虑到人员与设备的安全,即便于操作,又有利于拆装与维修。
(4)?阀门应正立垂直安装在水平管道上,导压管必须安装在距离阀出口至少六倍于公称通径的阀后管道上。阀自重较大与有振动的场合,要用支撑架,尽量避免水平安装。
(5)?介质流动方向应与阀体上的箭头指向一致。因微压阀属于精密仪表,其中指挥器膜片直接承受介质压力,若阀门反装或管道有反冲压力,则指挥器膜片由于受压过高导致膜片损坏,阀门不能工作。阀门应在环境温度-25~+55℃场所使用。
(6)?为使自控系统失灵或检修阀门时,仍能连续生产,应设置旁路阀(见图三)。
?
1、?维护:
(1)?清洗阀门:对清洗一般介质,只要用水洗净就可以。但对清洗有害健康的介质,首先要了解其性质,在选用相应的清洗办法。
(2)?阀门的拆卸:将外露表面生锈的零件先除锈,但在除锈前,要保护好阀座、阀芯、阀杆与推杆等精密零件的加工表面。拆装阀座时应使用专用工具。
(3)?阀芯、阀座:二密封面有较小的锈斑与磨损,可用机械加工的方法进行修理,如损坏严重必须换新。但不管修理或更换后的硬密封面,都必须进行研磨。
(4)?阀杆:表面损坏,必须换新。
(5)?压缩弹簧:如有裂纹等影响强度的缺陷,必须换新。
(6)?易损零件:填料、密封垫片与O型圈,每次检修时,全部换新。膜片必须检查是否有预示将来可能发生裂纹、老化与腐蚀等痕迹,根据检验结果,决定是否更换,但膜片使用期一般最多2~3年。
(7)?阀门组装要注意对中,螺栓要在对角线上拧紧,滑动部分要加润滑油。组装后应按产品出厂测试项目与方法调试,并在这期间,可更准确地调整填料压紧力与阀芯关闭位置。
2、?调试
所需要压力值是通过对指挥器顶部的调节螺母的操作而得到调整,打开顶部的防尘盖,用扳手调整调节螺母。顺时针方向旋转使压力增大,逆时针旋转则压力减小。安装在压力调节阀后的压力表,可使工作人员借以观察调整后的压力给定值。
?
六.订货须知
订货时请注明下列内容
1)阀门型号
2)通径×阀座尺寸Kv值
3)阀体压力及连接形式
4)阀体和阀内组件的材料
5)阀特性及阀芯的形式
6)上阀盖形式
7)执行机构形式,是否带手轮机构及供气压力
8)正/反作用(气关式或气开式)
9) 附件(带过滤器减压阀等)
10)特殊要求(禁水处理,禁铜等)
11)介质名称
12)正常流量及最大流量
13)介质压力,阀全开和全闭时阀进口和出口压力
14)介质温度和比重
15)介质粘度,是否含有悬浊液,是否有闪蒸汽